logo

½Ã°£À̰¡ Èê·¯µµ º¯Ä¡ ¾ÊÀ» °¡Ä¡¸¦ À§ÇØ
¼¼¼¼ÇÑ ºÎºÐµµ ³õÄ¡Áö ¾Ê´Â ÄÚ·¼ µµ¾î & À©µµ¿ì

ZEN CUBE 2015 Á¾·ù ¹× ¿É¼Ç ¼±ÅÃ


- 4ÀÎ ÀÌ¿ë ÀûÇÕÇϰí ÀÛÀº ȸÀÇ °ø°£À¸·Î ÀûÇÕ
ºÎ½º ¿ÜºÎ »çÀÌÁî : Æø 2000 ¡¿ ±íÀÌ 1550 ¡¿ ³ôÀÌ 2269
ºÎ½º ³»ºÎ »çÀÌÁî : Æø 1860 ¡¿ ±íÀÌ 1410 ¡¿ ³ôÀÌ 2025
ºÎ½º À¯È¿ ³ôÀÌ : Ä«ÆäÆ® ¡ê õÁ¤ : 2025 / Ä«ÆäÆ® ¡ê Àüµî : 1955

ZEN CUBE 1212 ÄÚÄÚ³ÓÅ©¸² (ÁøÀú¿ÀÅ© ÀϹݺ¸µå) + ¹Ý¿øÇÚµé µ¿¿µ»ó º¸±â

ZEN CUBE 1510 Çã´Ï¿ÀÅ© (Çã´Ï¿ÀÅ© Ÿ°øº¸µå) + ºÐ¸®Çü µµ¾î¶ô µ¿¿µ»ó º¸±â



* ÁÖÀÇ: µµ¾î ¼ÕÀâÀÌ´Â ÇÕ¼ºÀÌ µÇ¾î ÀÖÁö ¾Ê½À´Ï´Ù.

ZEN CUBE ¿ÜºÎ: ÁøÀú¿ÀÅ© / ³»ºÎ: ÁøÀú¿ÀÅ©
¡ã ¿ÜºÎ: ÁøÀú¿ÀÅ© / ³»ºÎ: ÁøÀú¿ÀÅ©
ZEN CUBE ¿ÜºÎ: ´ÙÅ©±×·¹ÀÌ / ³»ºÎ: ´ÙÅ©±×·¹ÀÌ
¡ã ¿ÜºÎ: ´ÙÅ©±×·¹ÀÌ / ³»ºÎ: ´ÙÅ©±×·¹ÀÌ
ZEN CUBE ¿ÜºÎ: ÄÚÄÚ³ÓÅ©¸² / ³»ºÎ: Çã´Ï¿ÀÅ©
¡ã ¿ÜºÎ: ÄÚÄÚ³ÓÅ©¸² / ³»ºÎ: Çã´Ï¿ÀÅ©
ZEN CUBE ¿ÜºÎ: Çã´Ï¿ÀÅ© / ³»ºÎ: ´ÙÅ©±×·¹ÀÌ Å¸°ø º¸µå
¡ã ¿ÜºÎ: Çã´Ï¿ÀÅ© / ³»ºÎ: ´ÙÅ©±×·¹ÀÌ Å¸°ø º¸µå
ZEN CUBE ¿ÜºÎ: ¾ÖÇ÷¹µå / ³»ºÎ: Çã´Ï¿ÀÅ© Ÿ°ø º¸µå
¡ã ¿ÜºÎ: ¾ÖÇ÷¹µå / ³»ºÎ: Çã´Ï¿ÀÅ© Ÿ°ø º¸µå
ZEN CUBE ¿ÜºÎ: Çã´Ï¿ÀÅ© / ³»ºÎ: Çã´Ï¿ÀÅ© ÀÏ¹Ý º¸µå
¡ã ¿ÜºÎ: Çã´Ï¿ÀÅ© / ³»ºÎ: Çã´Ï¿ÀÅ© ÀÏ¹Ý º¸µå
ZEN CUBE ¿ÜºÎ: ÁøÀú¿ÀÅ© / ³»ºÎ: ÁøÀú¿ÀÅ© Ÿ°ø º¸µå
¡ã ¿ÜºÎ: ÁøÀú¿ÀÅ© / ³»ºÎ: ÁøÀú¿ÀÅ© Ÿ°ø º¸µå
ZEN CUBE ¿ÜºÎ: ÁøÀú¿ÀÅ© / ³»ºÎ: ÁøÀú¿ÀÅ© Ÿ°ø º¸µå
¡ã ¿ÜºÎ: ÁøÀú¿ÀÅ© / ³»ºÎ: ÁøÀú¿ÀÅ© Ÿ°ø º¸µå
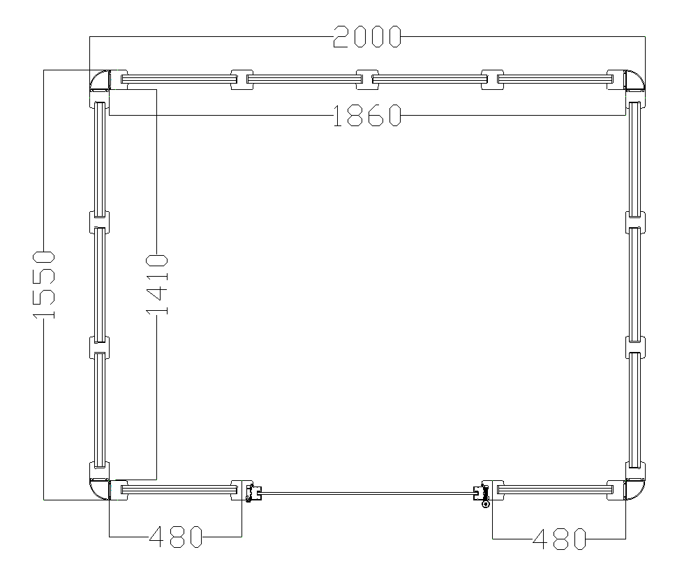
ZEN CUBE Æò¸éµµ - Á¿ìÇȽº Æí°³Çü
¡ã Æò¸éµµ - Á¿ìÇȽº Æí°³Çü
¿Ü°æ:2000*1550 / ³»°æ: 1860*1410
ZEN CUBE Á¤¸éµµ - Á¿ìÇȽº Æí°³ µµ¾îÇü
¡ã Á¤¸éµµ - Á¿ìÇȽº Æí°³ µµ¾îÇü
¿Ü°æ:2000 / ³»°æ: 1860
ZEN CUBE Ãø¸éµµ
¡ã Ãø¸éµµ
¿Ü°æ:1550 / ³»°æ: 1410
ZEN CUBE µµ¾î ¸ÂÀºÆí
¡ã µµ¾î ¸ÂÀºÆí
¿Ü°æ:2000 / ³»°æ: 1860